Из чего состоит дизайн-проект
Если Вы ещё не уверены в том, нужен ли вам дизайн-проект и что вообще кроется за этим таинственным словосочетанием, то давайте разберёмся вместе) Создание дизайна интерьера проходит поэтапно, и на каждом из этапов дизайнер согласует свою работу с клиентом.
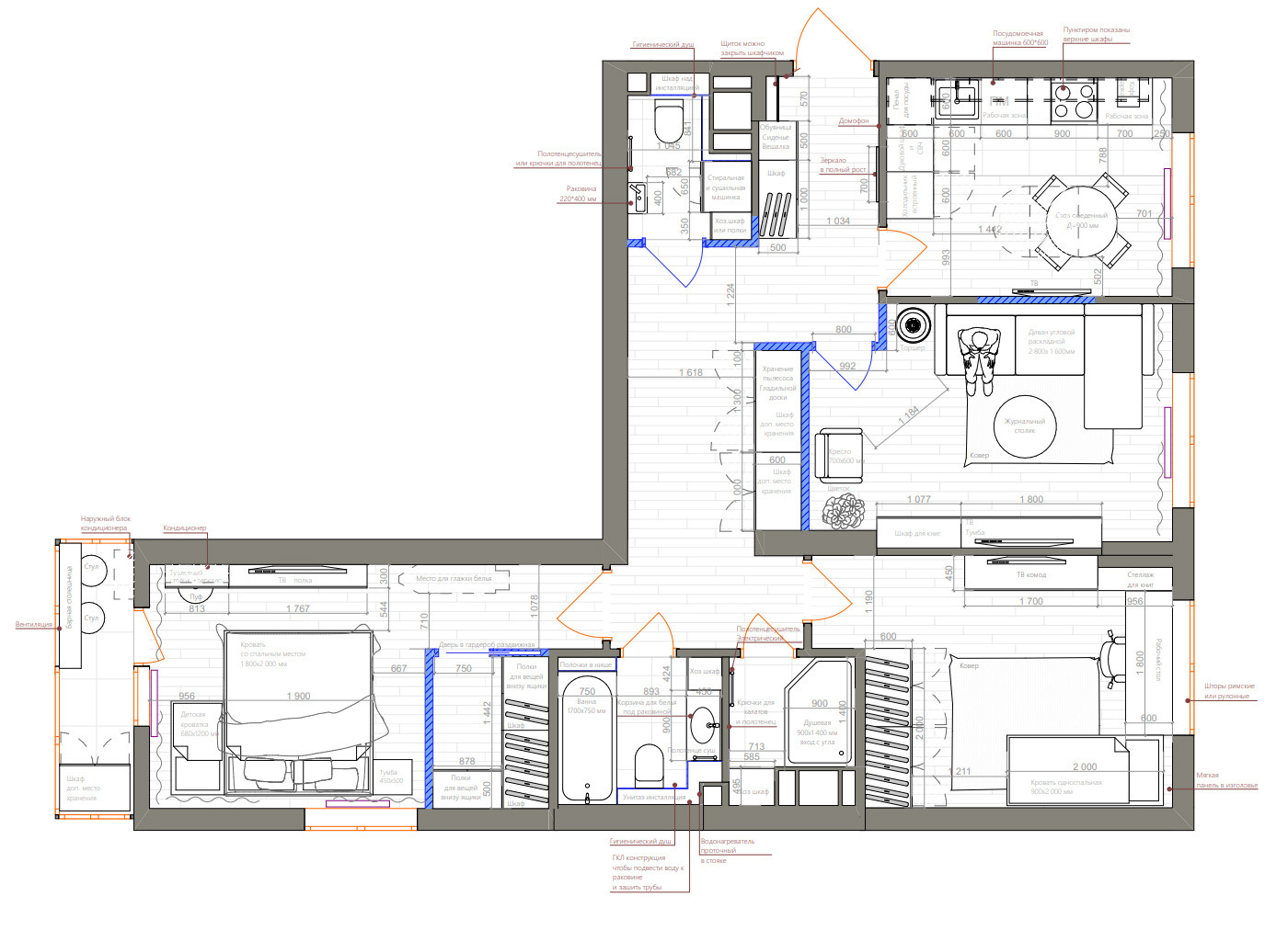
Первый этап — планировочное решение. По итогу этого этапа вы получите план вашего жилого (или нет) пространства с продуманным дизайнером размещением всех необходимых функциональных зон, с рассчитанной эргономикой. И не один вариант, а два-три, чтобы выбрать наиболее подходящий.

Второй этап — стилевое решение и 3D визуализация. Дизайнер составляет на основе ваших пожеланий коллаж, иллюстрирующий как примерно будет выглядеть помещение. Это своеобразный концепт будущего дизайна. Ознакомившись с коллажами, обсуждаем с клиентами что поменять и что дополнить.


3d Визуализация. Определившись с планировкой и стилевым решением, дизайнер приступает к 3d визуализации, самой объёмной части работ. На этом этапе он полностью прорисовывает в программе (SketchUp и 3DMax) помещение в таком виде, в каком его желает видеть заказчик. Получив фотореалистичные изображения, дизайнер с клиентом обсуждают готовый интерьер и вносят необходимые правки.


Третий этап — Альбом чертежей необходимый для реализации интерьера, а так же списки материалов и мебели со ссылками на магазины. После согласования визуализации дизайнер выполняет на её основе все необходимые чертежи. Может показаться, что ремонт осуществить легко, просто заглядывая в визуализацию — но это заблуждение, которое может стоить не только потраченных нервов, но и денег. Ведь именно в чертежах содержится вся необходимая информация: где какие розетки будут, какая раскладка плитки, где будут светильники, какие размеры мебели и расстояние, необходимое, чтобы верно разместить её в пространстве. А также списки материалов и мебели с указанными артикулами и ссылками, чтобы по итогу получился красивый и максимально похожий интерьер, как в разработанном проекте.
Вот, что скрывается под словосочетанием дизайн-проект!







